2 BEDROOM Flat / Apartment
£81,250
Hotham Drive, Binfield, Bracknell, RG42
Leasehold
Apartment Department
- 2 bed
- 1 bath
- 1 receptions
Full description
This property is available at a 25% shared ownership price of £81,250 and also available at a 100% full share price of £325,000.
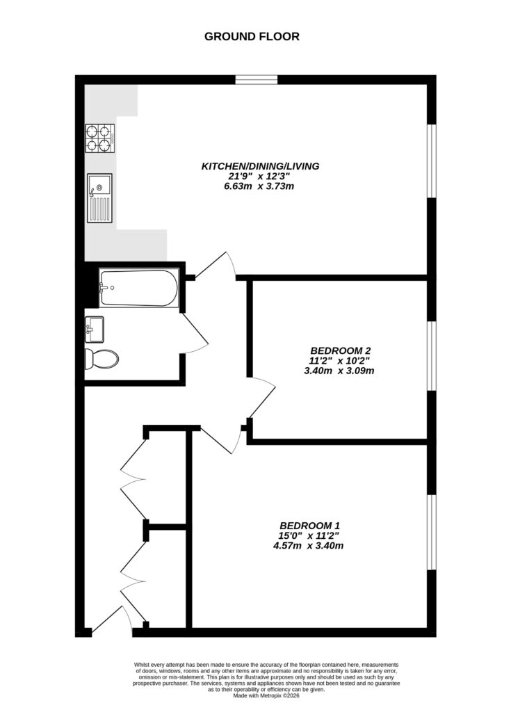
This beautifully presented two bedroom maisonette is located in the highly desirable area of Binfield and is offered to the market in immaculate condition throughout. Benefiting from its own separate private entrance, the property offers a level of privacy more commonly associated with a house than an apartment.
At the heart of the home is a lovely open plan kitchen and lounge, thoughtfully designed to create a bright and welcoming living space. Dual windows allow an abundance of natural light to flood the room while providing an attractive outlook over the well maintained communal gardens. The kitchen is finished to a high standard, offering both style and practicality for modern living.
The accommodation further comprises two well proportioned bedrooms, a modern family bathroom finished to a high standard and an abundance of built-in storage throughout the property, ensuring the space remains both functional and clutter free.
Ideally positioned close to local amenities, green spaces and transport links, this charming maisonette would make an ideal first time purchase, downsize or investment opportunity. Early viewing is highly recommended to fully appreciate the quality, light filled accommodation, and desirable location.
Property Summary
Two Bedrooms
Private Entrance with Added Privacy
Bright Open Plan Living Space
Modern High Specification Kitchen
Well Proportioned Bedrooms
Excellent Storage Throughout
Convenient Location Near Amenities
EPC: B (84)
Council Tax Band: C
FIND OUT HOW MUCH YOU CAN BORROW
Stamp duty calculator
Mortgage calculator














