Full description
FREEHOLD SHOP – Town Centre Location
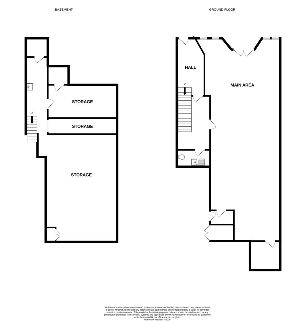
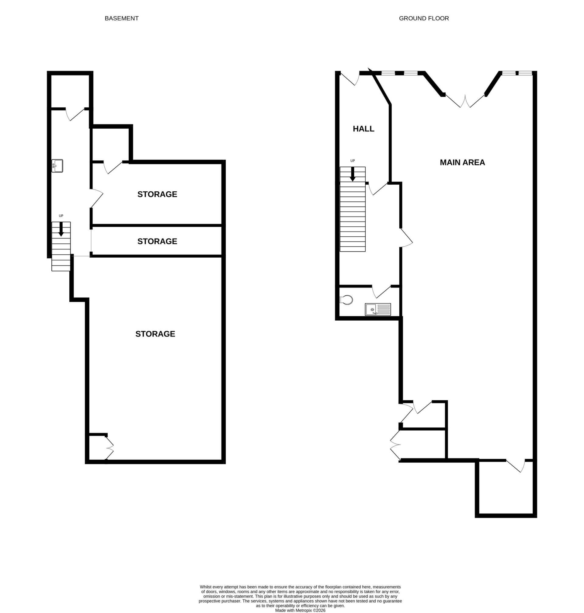
Situated on the High Street in Aldershot is this freehold retail premises. The unit currently has E(a) and B8 use class. The main shop area is in need of cosmetic improvement, and the cellar offers great storage. The premises comes with a parking space to the rear.
Note. There is also a one bedroom leasehold flat above available by separate negotiation.
Property Summary
Retail Shop
Freehold
Cellar Storage
High Street Location
Class E(a) and B8 Use
Parking Space
EPC: TBC
Contact the branch
FIND OUT HOW MUCH YOU CAN BORROW
Stamp duty calculator
Mortgage calculator














