3 BEDROOM Semi-Detached House
£1,600 pcm
Chestnut Avenue, Aldershot, Hampshire, GU12
- 3 bed
- 1 bath
- 2 receptions
Full description
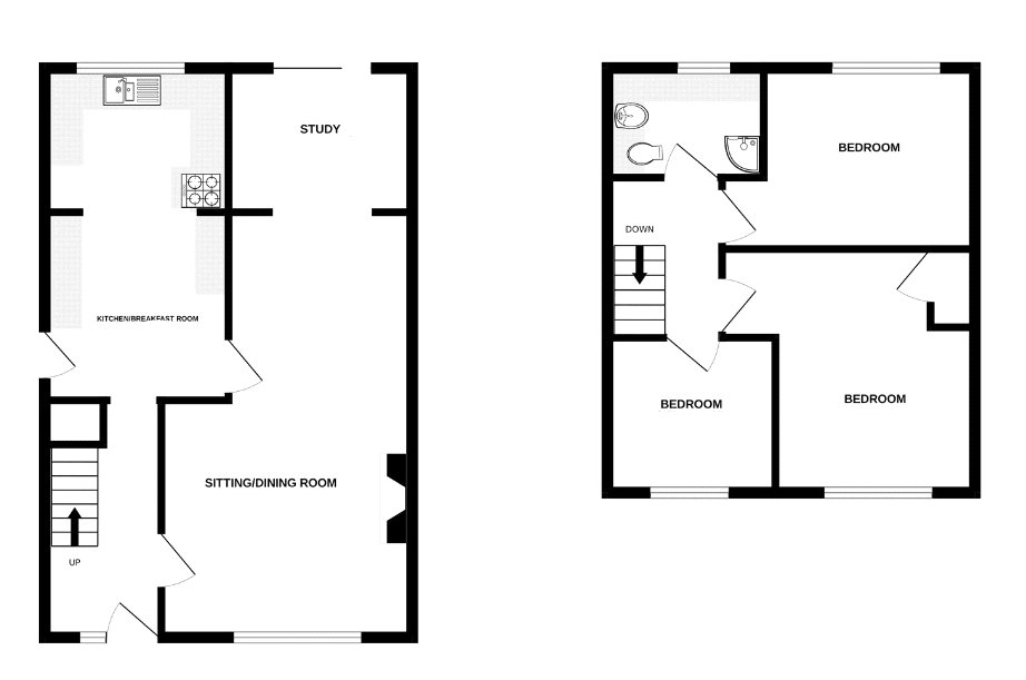
Available Now (Unfurnished) – This three-bedroom semi-detached house is a much-loved family home and is situated within a desirable area. The accommodation includes: living room, kitchen with appliances, shower room.
To speed up the reservation process, we recommend you attend all viewings with your original right to rent documents; photo ID (passport) plus a proof of address (e.g. driver’s licence/utility bill/bank statement dated within the last three months). SECURITY DEPOSIT: £1,846.10
Property Summary
Three Bedroom Semi-Detached House
Available Now
Living/Dining Room
Kitchen with Appliances
Shower Room
Private Garden
Pets Considered
EPC: E (48)
Council Tax Band: D
FIND OUT HOW MUCH YOU CAN BORROW
Stamp duty calculator
Mortgage calculator









