2 BEDROOM Terraced House
£1,400 pcm
Wild Herons, Hook, RG27
- 2 bed
- 1 bath
- 1 receptions
Full description
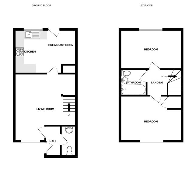
Bridges – Available Late FEB (Unfurnished) This two-bedroom mid terraced house is a much-loved home and is situated in a popular area. The accommodation includes, living room, kitchen with appliances, plus bathroom and cloakroom. Pets will be considered by the landlord when you submit an offer for the property (subject to an additional £50pcm).
To speed up the reservation process, we recommend you attend all viewings with your original right to rent documents; photo ID (passport) plus a proof of address (e.g. driver’s licence/utility bill/bank statement dated within the last three months). SECURITY DEPOSIT: £1,615.30.
Property Summary
Two Bedroom Mid Terraced House
Available Late January
Living Room
Kitchen with Appliances
Bathroom and Cloakroom
Allocated Parking
Pets Considered (add £50pcm)
EPC: C (74)
Council Tax Band: C
FIND OUT HOW MUCH YOU CAN BORROW
Stamp duty calculator
Mortgage calculator









