2 BEDROOM Flat / Apartment
£399,000
Asking Price
Station Road, Hook, Hamshire, RG27
Leasehold
Apartment Department
- 2 bed
- 2 bath
- 1 receptions
Full description
TWO BEDROOM APARTMENT – Close to Local Amenities and Train Station
**Welcome Wednesday event 10th June 2.00pm – 4.00pm**
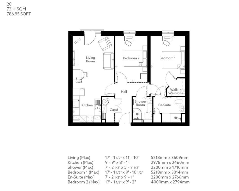
Apartment Twenty is a beautifully appointed two bedroom second floor apartment, thoughtfully designed for comfortable and independent retirement living.
The spacious principal bedroom boasts a modern en suite and a walk-in wardrobe for added convenience. A second double bedroom is served by an additional contemporary shower room, offering flexibility for guests or a home office. The apartment also features a fully fitted modern kitchen, a bright and welcoming living/dining room, and useful built-in storage throughout.
Located within walking distance of local shops and the train station, these stunning retirement apartments offer the ideal combination of comfort, style, and convenience.
Please note: Images shown are of the development and may not represent the exact apartment.
Property Summary
Two Bedroom Retirement Apartment
Landscaped Gardens
Lifts to all Floors
Pets Welcome
Communal Lounge
Intruder Alarm
Close to Local Shops EPC: B Council Tax Band: TBC
FIND OUT HOW MUCH YOU CAN BORROW
Stamp duty calculator
Mortgage calculator










