5 BEDROOM Detached House
£750,000
Asking Price
Station Road, Frimley, Camberley, Surrey, GU16
Freehold
- 5 bed
- 2 bath
- 3 receptions
Full description
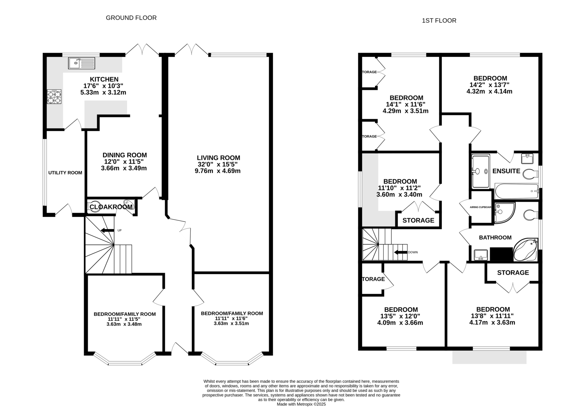
HOT NEW LISTING – VERSATILE FIVE BEDROOM DETACHED HOUSE! Conveniently Located with Potential for Further Developments
Bridges Estate Agents in Frimley are proud to offer to the market this versatile five double bedroom detached house for the first time since new. This property is conveniently located within a quiet residential road, just a short walk from Frimley High Street. The property sits on the biggest plot in the road and offers potential for further development subject to planning. Ground floor accommodation offers four reception rooms including a generously sized living room with patio doors to the garden, a fitted kitchen/breakfast room, dining room, utility room, and a cloakroom. The two front reception rooms could also be used as bedrooms making it an attractive option for a multi-let investment. The first floor offers five double bedrooms, a family bathroom and an en suite bathroom to the principal bedroom. There is also a spacious loft space which is fully boarded with a loft ladder.
PLEASE NOTE: The current owners are in the process of splitting the title to retain part of the plot. Please contact the Estate Agent for full details and we would advise seeking professional advice from a solicitor for the process of purchase.
Property Summary
Five Double Bedrooms
Four Reception Rooms
Substantial Plot
Off Street Parking
Potential to Extend (STPP)
Walking Distance to Frimley Train station
Potential for HMO Investment
EPC: E (52)
Council Tax Band: F
FIND OUT HOW MUCH YOU CAN BORROW
Stamp duty calculator
Mortgage calculator


















